New Town Hall News and Information
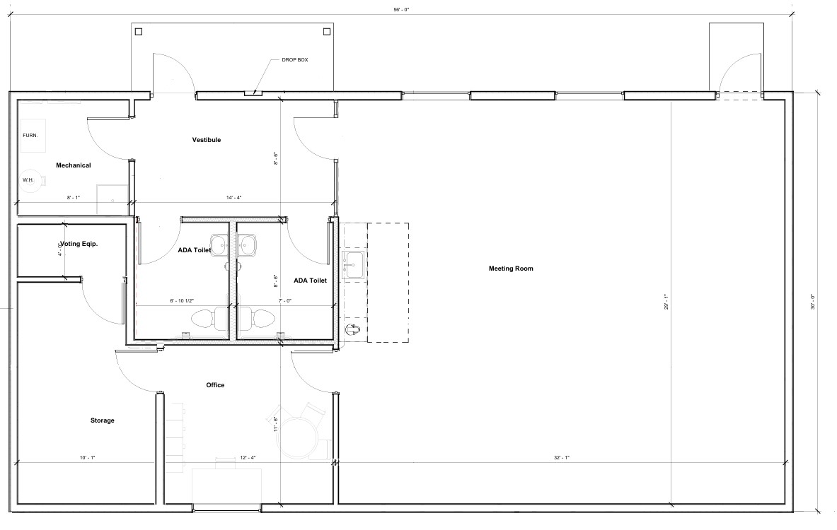
**The floor plans shown are a preliminary example. No formal plans have been created at this time
Survey Results

Q & A
Why are we looking to build a town hall?
- Meeting Use
- Meetings whenever we need them, no approval from the landlord
- The town would have our own space - right now, we must set up and tear down for every meeting, as we do not have our own room at the current facility.
- Current storage space for voting equipment, tables, chairs, video display, sound system, etc. isn't adequate for our needs.
- The gym isn't conducive for good audio quality for residents to hear meetings well, so unfortunately some residents don't attend.
- Elections Use
- The school currently must cancel classes that day, so our town can hold elections without disruption.
- The town has to clear a space for elections.
- The town doesn't have a drop box for absentee ballots.
- Currently, anyone wishing to do in-person absentee voting comes to the Clerk's home to vote. The clerk's home is not ADA compliant. This has caused some challenges for some voters.
- Office Use
- Both the clerk and the treasurer do their current workload from their home offices.
- Mail is delivered to their home addresses.
- Tax Collections
- The treasurer has a drop box for tax collections at her home on her doorstep.
- Tax Collections at a new facility would eliminate set up, tear down, and having to haul equipment necessary to collect taxes.
- Safe & Secure Storage
- The current storage room at the school that is for the town's use is also accessible to the school staff. Voting equipment and other town items need to be secure and unaccessible to public.
- The town's large video display has been damaged by someone other than town staff.
- The election equipment that is stored in this storage room requires an electrical connection and the town has been using a make-shift electrical outlet from a light. The local fire inspector has written up the school as this doesn't meet codes. The school will not provide a code compliant electrical connection and said it would be at the town's cost to do so.
- The Chairman, Clerk and Treasurer all are storing town materials and town records.
- Town Postings
- The town currently has a sign board at Doug's Northside Auto Repair to post our legal notices. This would give us our own posting board at our town hall to post our notices.
- Technology Challenges
- Audio Enhancement (as mentioned above)
- Online Streaming of Meetings
- Presentations
- The current facility offers many challenges to offer technology advancements for our town residents.
- Wear and tear on equipment with constant set up, take down, and storage
Where will the new town hall be built?
- As part of the survey, residents were asked if they would be willing to sell or donate one acre to the township for the purpose of building the new town hall. As of 2/5 the following responses have been received
- Might be interested in selling an acre to township
- Michelle Oettinger (Hogan Rd)
- Robert Wegner (Currie Rd)
- Interested in donating an ache to township
- Raymond Krueger (Dumke Rd)
- Portage Community Schools (Wilcox Rd)
- Might be interested in selling an acre to township
Who will build the town hall?
- TBD the town will need to go through the proper procedures to hire a general contractor
- The town would like and plans to use local contractors anyway possible
How much will the new town hall cost?
- TBD we have obtained cost examples for other townships that have recently completed the process. We are currently looking into ways to reduce costs and get estimations. More information will be provided as obtained
- The town has been actively saving money for such project. The town currently holds the funds to complete the project without tax implications for our residents
Fort Winnebago School History
- Joint School District of Fort Winnebago owned and operated the school building until they turned it over to the Portage Community School District in approximately 1961.
- Portage Community Schools allowed the Town of Fort Winnebago use of the school for meetings/elections/etc.
- At the Annual Meeting on April 4, 1961 –a motion to add an addition onto the school for the town hall was defeated.
- Special Town Meeting held on March 10, 1962 ratified an agreement between the School District and the Town of Fort Winnebago, giving the town the use of the school building.
- On July 2, 1974 the land, owned by the Grubb family, was sold the to the School District for $1.
- Portage Community Schools owned and operated the Fort Winnebago Elementary School and land until June of 2013.
- In 2013, Portage Community Schools were interested in selling the school and offered the school to the Town of Fort Winnebago.
- On December 2, 2013, the town board voted to give CESA 5 the right of 1st refusal and purchase, with the town having 2nd rights.
- Portage Community Schools leased the Fort Winnebago Elementary School to CESA 5 for their COMAN project, with the agreement that the Town of Fort Winnebago would have a storage room and use of a room for meetings/elections/etc.
- In October of 2014 the Portage Community School board directed their attorney to draft an agreement for the town on continued use of the space for meetings/elections/etc., referencing intent to sell the school to CESA 5.
- November 2014, the board discussed CESA 5’s proposal to purchase the school for the COMAN project. The town board ultimately voted against purchasing for the price of $160,000, also noting that the building would require a new roof and other maintenance in the near future.
- In July 2015 CESA5 purchased the school and land from the Portage Community School District and has owned and operated since that time
Next Steps
1. Prepare cost estimates and a proposed project plan
- This is currently being put together by Kent Fish and will be presented at the April Town Board Meeting 4/6/2026
2. Town board to review at April town board meeting, and decide if they would like to add to the adgenda for vote at the Annual Meeting 4/21/2026 6:30pm
**Please visit this page for any updates as they progress